図面データが無くてお困りの方は相談してください
金型の図面がなくて困っている
昔の金型だと図面がない場合も多いかと思います。現物をお持ち頂ければ、ゼロから図面を作ります。
紙の図面をデータ化したい
紙図から2D、3D図面へのレベルアップを行います。
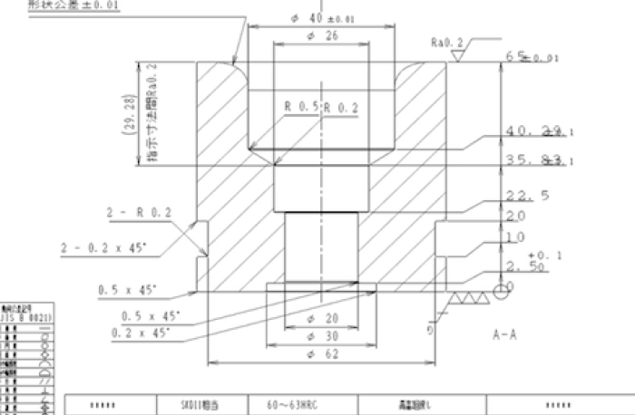
金型特有の図面でももちろん問題ございません。
2Dから3Dにしたい
3D図面を作ります。
3Dで作ることで、データの最新化や利用しやすさが向上します。
2D図面を3D図面にします
紙図、PDFをスピード立体化して御社の資産を3Dモデル化します。
2次元データがあれば、さらに納期は早くなりますし、3次元データだけでも対応できます。
1.検図
図面をお送りいただき、図面の確認を行います。
そこから納期や見積もりの相談して、作業を開始いたします。
2.紙図をスキャン
3.DXF データ化
スキャンした図面を基に、DXFを作成します。
4.3Dデータ化
もちろん3Dデータ化も可能です。
作業はおよそ2週間から1ヶ月で行います。急ぎの場合はご相談ください。
5.実加工
金型の新規製作や修理も行いますので、お気軽にご相談ください。




